See More Texas Airport Properties
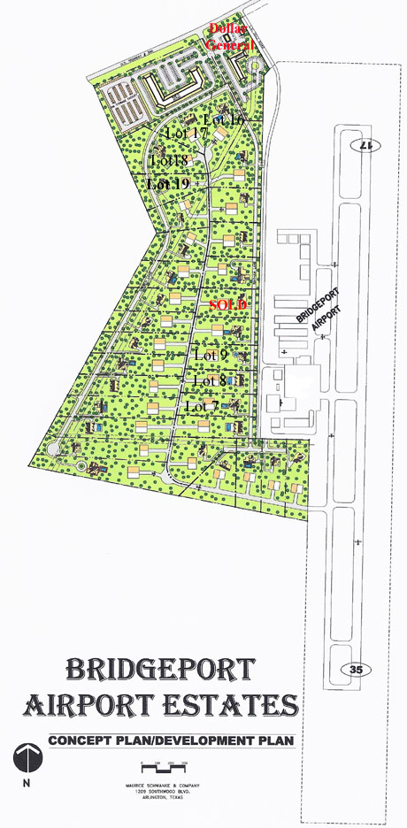
Paved taxiway Lots for Sale, gated airpark, Bridgeport, Runaway Bay, Texas
Beautifully wooded, paved taxiway lots for sale in gated, private airpark, with direct, dedicated access to 5,000+ ft paved, FAA funded, City maintained municipal airport; RNAV, VOR/DME and GPS approaches. Located less than 1 mile from Lake Bridgeport / Runaway Bay, golfing, hunting, and approximately 30 minutes from Ft Worth and all it offers. Offered for immediate sale at only: $WITHDRAWN.



|
Property Info: Airport Information: Directions [from Ft. Worth]: Hwy 287 / 81 north to Decatur, then west on Hwy 380 through Bridgeport. Subdivision is located on the west side of the Bridgeport Municipal Airport, approx. one-half mile before Lake Bridgeport. Enter through double gate immediately past main airport entrance. |
|
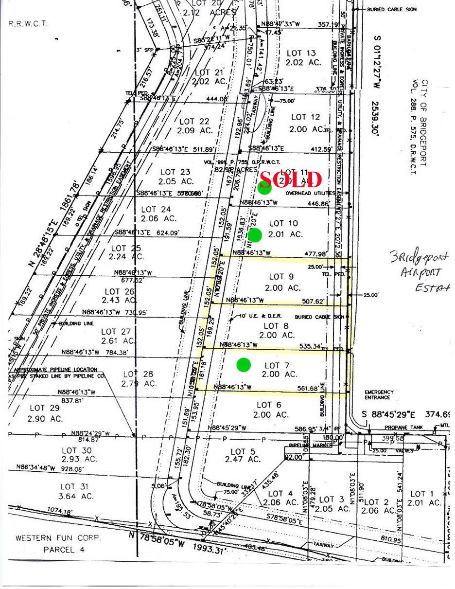
Private, Paved Frontage Street
Taxiway Turn-around by Lots 16-20